
拝啓 益々ご清栄のこととお慶び申し上げます。平素は格別のご愛顧を賜り厚く御礼申し上げます。 今年度も感謝祭を開催する運びとなりましたので、ご案内申し上げます。 壁材・床材から水回りまでの住宅設備機器をはじめ金物工具の展示のほか、ワークショップなどもご用意しております。 またお蕎麦、フランクフルト、お飲み物をご用意して、皆様のご来場を心よりお待ち申し上げます。 敬具
記
日 時 令和7年10月3日(金)午前9時より午後4時まで
10月4日(土)午前9時より午後3時まで
両日とも飲食コーナーは午前11時からご提供開始
場 所 橋爪商事株式会社 本社特設会場
(大船渡市大船渡町字砂森2-20)
以上
≪出展業者≫
【建材センター2Fショールーム】
AGC硝子建材(株)、クリナップ(株)、ケイミュー(株)、タカラスタンダード(株)、TOTO(株)、ニチハ(株)、パナソニック(株)、(株)LIXIL、YKKAP(株)
【建材センター1F特設会場】
Gテリア(株)、岩泉ホールディングス(株)、(株)岩手ナブコ、(株)ウッディさんない、三協テック(株)、ジャパン建材(株)、(株)ジューテック、杉田エース(株)、東洋工業(株)、(株)西林、(株)日本トリム、マツ六(株)、和以美(株)
【金物センター特設会場】
(株)川本第一製作所、京セラインダストリアルツールズ(株)、工藤メタル湘南、工機ホールディングスジャパン(株)、(株)下谷金属、(株)谷沢製作所、トンボ工業(株)、トラスコ中山(株)、(株)ピカコーポレーション、(株)ヒシヒラ、(株)マキタ、丸高興業(株)、やまびこジャパン(株)
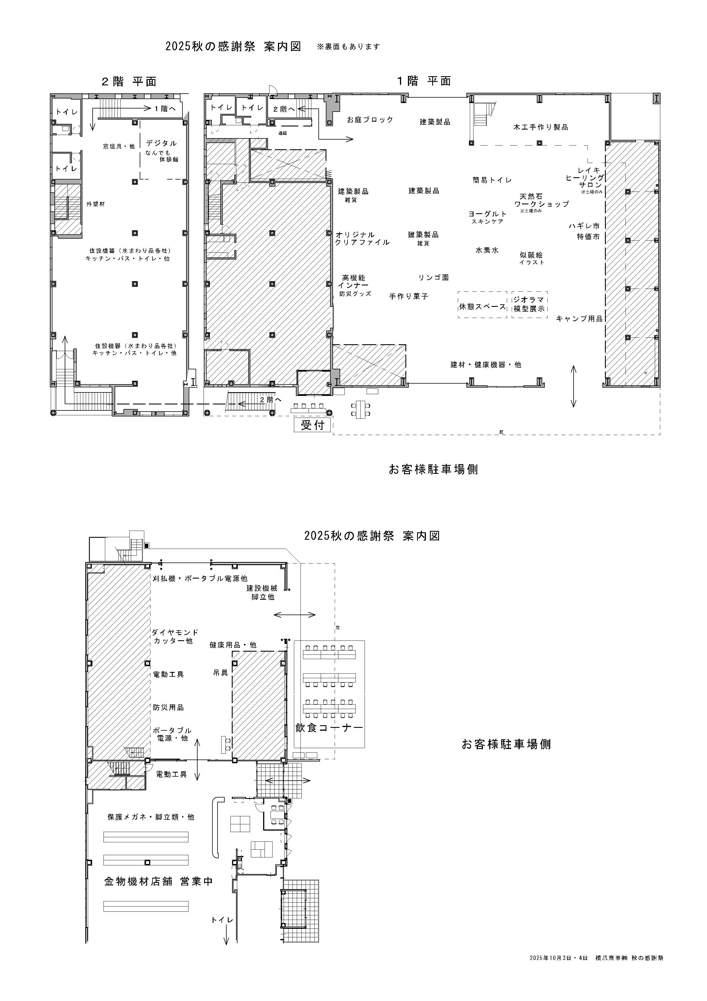
感謝祭の会場配置図を以下に表示します。当日は受付にて裏表コピーした配置図をお渡し致します。
|


